ホーム ≫ [枚方市]マンションリノベーション K様邸 ≫
マンションリノベーション
K様[枚方市]

住所 | 大阪府枚方市 |
---|---|
工期 | 約40日間 |
リフォーム内容 |
リノベーション(全面改修・配置変更など) |
リフォームのきっかけ | 築20年の中古マンションを購入し、ご家族のライフスタイルに合うよう使い勝手のよい内装へリフォームしたい。 |
弊社を知っていただいたきっかけ | 当社HPをご覧下さりお問い合わせ・ご相談をいただきました。 |
リフォーム施工前
-
リビングから廊下・玄関
-
リビングから右手前がキッチン奥が和室
-
リビング反対側から
-
洗面・洗濯・脱衣室 縦長である事と廊下 からの入口に対して手前が洗濯、奥が洗面と少し使いずらそうです。
-
真ん中にある6帖の和室 リビングからの光は少し入るがうす暗く住まわれる方にとっては・・・
-
廊下から和室への入り口
-
タイル貼りのユニットバス【改修前】
-
トイレ【改修前】
-
キッチン【改修前】
-
洋4.7帖【改修前】
-
洋室5帖【改修前】
Before

●玄関入り口に据付の下駄箱(天井まで)がある事により圧迫感があり出入りしずらい。薄暗く狭い印象になる。
●廊下から出入りの洗面・洗濯・脱衣場は細長く手前が洗濯 奥が洗面と家事動線は少しでも小さく済むが家族が使う洗面が一番奥では使いずらい・・。また洗濯・脱衣場はどうしても生活感が一番出やすい場所のためゲスト(知人・友人・訪問者)の目に触れないよう工夫したい。
After

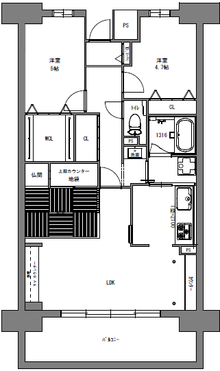
●洋室5帖からのウォークインクローゼットを新設
●廊下側にも大容量の収納を新設掃除機・日用品のストック・ゴルフバックやレジャー用品の収納などに便利
●洗面/脱衣・洗濯室を間仕切る事により外部客 への生活感露出の排除。廊下から洗面へは扉なしのオープンとし誰もが使いやすい洗面へ・・
●洗面から脱衣場へは鍵付きの折れ戸を設置しご家族の動線は確保。
●浴室はサイズを10cm拡張
●キッチンのレイアウトを替えキッチン横の片引き戸からは洗濯⇔キッチン⇔多目的カウンター⇔バルコニーへと家事動線が一直線上に・・
●多目的カウンターはアイロン掛けの作業台や奥様の小休止スペース・PCデスク・子供の勉強スペースなど多用途に利用
●下駄箱は撤去しシューズクローゼットを新設圧迫感なく、スッキリ・広い玄関へ
リフォーム施工中
-
解体前の養生
-
キッチン撤去 垂れ壁も全て解体
-
洋室2部屋の絨毯捲り
-
キッチン廻りがすべて無くなりました。
-
和室6帖 押入・間仕切り壁の解体
-
解体後 リビング側から
-
給水・給湯・排水の仕込み
-
新たしい間取りに合わせて間仕切り壁の下地を起します。
-
新しい浴槽です。保温剤で覆われており湯温が下がりにくいんです(魔法瓶浴槽)
-
順調に進んでます。
-
こちらは新しく作ったウォークインクローゼット です。広い・広い
-
リビングから 左が畳の間 右奥がキッチンの入口
-
玄関横にシューズクローゼット新設
-
新設したウォークインクローゼットです。 扉をつけて完成 中にもダウンライトの照明をつけたので明るいです!
-
機能性・意匠性を兼ね備えたエコカラットでリビングに変化と華やかさを演出
リフォーム施工後
-
いい雰囲気になりました。エコカラットは匂いを吸着し 余分な湿気も吸収。空気もキレイなリビングです。
-
以前の閉鎖的だった和室は東向きのリビングと一体にする事で明るいモダンな畳スペースへ
-
廊下からリビングドア入り口 格子間仕切りで、ゆるやかに 視線を遮り和室との仕切りに圧迫感を感じさせません。
-
TOTOマンション用ユニットバスWF 10cm浴室を広くしました。カウンター付は使い勝手◎です。
-
キッチン(奥の引き戸から洗濯室・脱衣場へ)
-
扉は折れ戸のため省スペースでの開閉が可能(簡易鍵付)
-
TOTOピュアレストEX 節水型・清掃性○
-
テレビAVカウンター スピーカー線を多目的カウンターまで 仕込み済のため有線5.1Chホームシアターセットもスッキリ
-
正面は多目的カウンター(左入り口がキッチン) 家事動線が一直線上のため、アイロン掛けや奥様の小休止 スペースまたはお子様の勉強机・PCデスクと多彩に利用
-
玄関廊下にもエコカラットで訪問者に対しても気になるお家の匂いを軽減。
-
雨の日や洗濯が多いときでも室内で干せる脱着式の竿掛け
-
間接照明・ダウンライトは調光式 明かりの使い分けに・・
-
畳は、い草ではないので汚れた際には水拭きが可能。 ダニも寄せ付けません。 カラー畳でモダンな和室になりました。
-
【洋室 2部屋】 カーペットは長めのループパイルで足ざわり・歩行感がとて も良いです。